Als geprüfter Brandschutzplaner bin ich für Standardgebäude inkl. Gebäudeklasse 4 von der Prüfung befreit. BP-0176-2017
Durch die Zusatzausbildung Fachplaner für barrierefreie Rettungswege habe ich ein besonderes Augenmerk auch hierfür und kann dies mit der Barrierefreiheitsplanung kombinieren.
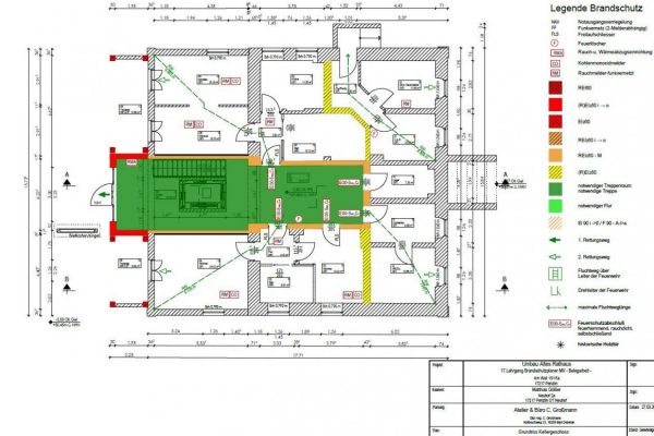
Beispiel „Denkmal altes Rathaus Penzlin“ (Tagespflege, Intensivpflege, Ambulante Wohngruppen)
(Bilder)
Mitglied des WTA Referat 11, dort zuständig für die AG Barrierefreier Brandschutz
(WTA = Wissenschaftlich-Technische Arbeitsgemeinschaft für Bauwerkserhaltung und Denkmalpflege)









